Трехкомнатная квартира 86,39 м2 по ул. Тормозное шоссе 3 за 7120000 руб.

Трехкомнатная квартира по ул. Тормозное шоссе, 3 в Ярославле
Цена 7 120 000 р. (82 417 р./м2)
Подать заявку на ипотеку
Район Фрунзенский
Адрес Тормозное шоссе, 3
Этаж 5/9
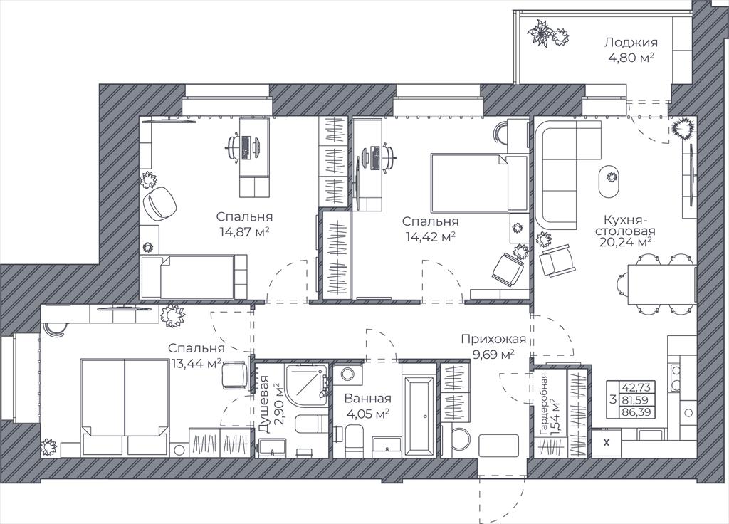
Площадь общая 86,39 м2, жилая 42,73 м2, кухни 20,24 м2
Кол-во комнат Трехкомнатная
В ЖК «Домашний» продаётся 3-комнатная квартира площадью 86,39 кв.м. с отделкой white box. Квартира расположена на 5 этаже в жилом комплексе комфорт-класса Домашний (срок сдачи 3 квартал 2027г) Отличная транспортная доступность - 19 мин. На авто до центра города; -5 мин. Пешком до школы и детского сада; -5 мин. На авто до поликлиники; - В шаговой доступности магазины и аптеки. Продуманный архитектурный проект -Высотность комплекса 9 этажей; -ЖК из керамического кирпича; -Высота потолков 2,7м; - Индивидуальное газовое отопление; - Просторные кухни от 20 кв.м. ; - Отделка white box (предчистовая отделка) выполняется во всех квартирах. Расположение ЖК Домашний строится во Фрунзенском районе, здесь множество возможностей для активного отдыха и поддержания физической формы. Облагороженная территория с полностью развитой инфраструктурой. В шаговой доступности находится детский сад и школа. В непосредственной близости находятся сетевые супермаркеты и локальные магазины, аптеки, клиники, почта, библиотека, салоны красоты, спортивные и творческие секции, развивающие детские центры. Внутренняя инфраструктура - Детские площадки; -Спортивные площадки; - Двор без машин; - Колясочные на первом этаже; - Лапомойки в каждом подъезде; - Кладовые в цокольном этаже. Условия покупки -СКИДКИ при покупке за НАЛИЧНЫЕ - Возможен вариант покупки с использованием ипотечных средств; - Возможно беспроцентная рассрочка; - Возможна покупка с использованием материнского капитала; - Военная ипотека. Жилой комплекс «Домашний» - это не просто место, где вы будите жить. Это дом, где вы сможете строить отношения, расти и развиваться. Мы делаем все возможное, чтобы создать для вас идеальные условия, а каждый ваш день был наполнен уютом и теплом.
Описание дома
Этажность дома 9
Объявление № 23437560
Дата подачи:
20 октября 2025 г. 0:08
Дата обновления:
20 октября 2025 г. 1:37
Просмотров 16 Хотите продать быстрее?

Продавец
Виктория
Показать номер телефона
Пожаловаться
Комментарии:
Добавить